Projekt domu -Przyjemny 7

ID projektu:26210

5450 zł5450 zł
Powierzchnia użytkowa 9976 m2
Min. wymiary działki 1882.00 x2164.00
Typ i kąt dachu / wysokość dwuspadowy40° /7.87m
  • Powierzchnia użytkowa 9976 m2
  • Powierzchnia zabudowy 9928 m2
  • Powierzchnia netto 10283 m2
  • Powierzchnia całkowita 15510 m2
  • Kubatura 530 m3

  • Min. wymiary działki 1882.00 x2164.00 m

  • Typ dachu dwuspadowy
  • Wysokość budynku 7.87 m
  • Kąt nachylenia dachu 40°
  • Powierzchnia dachu 13780 m2

  • Poddasze użytkowe
  • Podpiwniczony nie
  • Garaż 1-stanowiskowy
  • Pomieszczenia 5 pokoi,2 łazienek
  • ID projektu 26210
  • Pracownia MGprojekt
5450 zł
Zamów Zadaj pytanie
pokaż lustrzane odbicie
ID projektu:26210

Pomożemy Tobie:

  • Wybrać projekt zgodny z Twoimi preferencjami
  • Sprawdzić jego zgodność z WZ lub PZT
  • Zakupić projekt w najlepszej cenie wraz z dostosowaniem
  • Znaleźć wykonawcę nowych technologii (np. fotowoltaika)

Gratis otrzymujesz:

  • Nieodpłatne porady inwestorskie (czytaj więcej)
  • Poradnik inwestora w PDF - "Kupiłem gotowy projekt - co dalej?"
  • Tablicę informacyjną
  • Bezpłatną zgodę na zmiany

Twoje korzyści:

  • Gwarancja najniższej ceny
  • Bezpłatna dostawa lub odbiór osobisty
  • Możliwość zwrotu lub wymiany
  • Zakup z profesjonalną obsługą
  • Przeszukiwanie tysięcy projektów na jednej stronie

Masz pytania?

Prezentowane informacje na karcie mają charakter poglądowy.

Jeśli potrzebujesz więcej informacji/szczegółów odnośnie projektu - możemy je wysłać na Twój email. Prosimy o kontakt telefoniczny lub wypełnienie formularza.

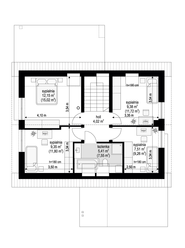
Rzut 1.
pokaż lustrzane odbicie

Rzut 1.

Rzut 2.
pokaż lustrzane odbicie

Rzut 2.

Sytuacja
pokaż lustrzane odbicie

Sytuacja

Pozycja Wartość
kąt nachylenia dachu 40°
wysokość w kalenicy 7.87 m
typ dachu dwuspadowy
powierzchnia dachu 13780 m2

Przekroje i szczegóły

Nazwa plik
Plik szczegółowy pobierz PDF
Zestawienie materiałowe pobierz PDF

Projekt domu Przyjemny 7, przeznaczony dla 3-5 osobowej rodziny. Projekt domu parterowego z poddaszem użytkowym, przykryty dwuspadowym dachem z okapami i z jednostanowiskowym garażem wysunietym na elewacji frontowej. Architektura budynku łączy w sobie tradycyjną bryłę z nowoczesnymi detalami. Dwuspadowy dach z okapami koresponduje tutaj z nowoczesnym detalami wykończenia ścian. Przyjemny 7 jest funkcjonalny, ma spokojną stonowaną, ponadczasową stylistykę. W budynku, mimo niewielkiej powierzchni, udało się uzyskać wygodne i funkcjonalne wnętrze pozwalające komfortowe mieszkać minimum czteroosobowej rodzinie. Na parterze zaprojektowano przestrzeń dzienną salonu, holu i kuchni, dodatkowy pokój oraz garaż jednostanowiskowy. Pod schodami przewidziano schowek.  Na poddaszu zaprojektowano wariantowo  : cztery sypialnie. Na parterze w pokoju dziennym – szerokie przeszklenie balkonowe otwiera wnętrze na taras i ogród. Zaproponowaliśmy tam drzwi przesuwne, ale można je oczywiście zastąpić tańszymi drzwiami balkonowymi z szerokim oknem do ziemi. Daszek nad tarasem to pergola przykryta poliwęglanowymi płytami. Konstrukcja może być drewniana lub aluminiowa. Można też zastąpić pergolę markizą lub żaglem – dowolnie. Nie jest to element stały budynku. „Przyjemnego 7” zaprojektowaliśmy jako dom maksymalnie prosty i łatwy w budowie. Jego prosta konstrukcja będzie łatwym zadaniem dla dowolnej ekipy. Nie ma tutaj dużych podciągów, podrażających konstrukcję elementów stalowych. Prosta bryła bez udziwnień i dobre izolacje termiczne przegród dają w efekcie dom energooszczędny. Instalacja c.o. bazowo zasilana jest z kotła gazowego, ale można też zastosować tutaj kocioł na paliwo stałe, albo pompę ciepła. „Przyjemny 7” to doskonała propozycja dla osób planujących budowę niedużego, funkcjonalnego domu, za skończoną określoną kwotę -bez przesady i bujania w obłokach. Dla Inwestorów wolących mieć dom mniejszy, za to lepiej i do końca wykończony. To projekt dla osób pragnących  architektury ponadczasowej, osadzonej w tradycji, w nowoczesnym ujęciu, która nie zestarzeje się wraz z odchodzącymi chwilowymi modami. Zapraszamy !

Technologia:murowa

Materiały:

Fundamenty: betonowe ławy i ściany fundamentowe z bloczków betonowych
Ściany zewnętrzne: ściany murowane – bloczki gazobeton + styropian 
Strop: betonowy teriva
Elewacje: tynk cienkowarstwowy
Pokrycie dachu: dachówka

Dach: dwuspadowy

Jednym z głównych atutów naszej firmy jest pełna legalność sprzedawanych produktów. Wszystkie prezentowane projekty pochodzą bezpośrednio spod ręki architektów/projektantów posiadających stosowne uprawnienia do wykonywania zawodu. Posiadaczem praw autorskich prezentowanego projektu jest:
Nazwa etapu Koszt
stan surowy otwarty 165 120 zł
stan surowy zamknięty 267 482 zł
pokrycie dachu 34 918 zł
roboty wykończeniowe 269 130 zł
pod klucz 536 612 zł
Nazwa Cena
wersja podstawowa 5450 zł

Udogodnienia

  • Parterowy
  • Poddasze
  • Podpiwniczony

Masz problem ze znalezieniem swojego idealnego projektu?

Po prostu skontaktuj się z nami. Niewielką część sprzedawanych projektów jeszcze nie udało nam się wprowadzić do wyszukiwarki internetowej. Dołożymy wszelkich starań, aby pomóc znaleźć Tobie to, czego szukasz!

Jak otrzymać dodatkowe rabaty?

UWAGA! Zapoznaj się z ofertą dalej współpracy i uzyskaj rabat na wszystkie produkty – nawet do 10%!

Zadaj pytanie o ten projekt





Zamów ten projekt






Projekty ARCHON+