Pomożemy Tobie:
- Wybrać projekt zgodny z Twoimi preferencjami
- Sprawdzić jego zgodność z WZ lub PZT
- Zakupić projekt w najlepszej cenie wraz z dostosowaniem
- Znaleźć wykonawcę nowych technologii (np. fotowoltaika)
Prezentowane informacje na karcie mają charakter poglądowy. Jeśli potrzebujesz więcej informacji/szczegółów odnośnie projektu - możemy je wysłać na Twój email. Prosimy o kontakt telefoniczny lub wypełnienie formularza.Pomożemy Tobie:
Gratis otrzymujesz:
Twoje korzyści:
Masz pytania?
(pn - pt: 08:00 - 18:00)
| Pozycja | Wartość |
|---|---|
| kąt nachylenia dachu | 37° |
| wysokość w kalenicy | 6.87 m |
| typ dachu | dwuspadowy |
| powierzchnia dachu | 8340 m2 |
| Nazwa | plik |
|---|---|
| Plik szczegółowy | pobierz PDF |
| Zestawienie materiałowe | pobierz PDF |
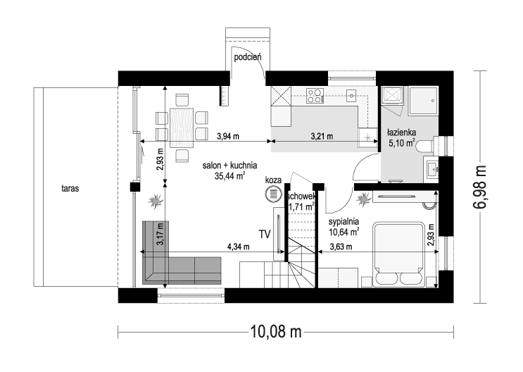
Projekt domu MG 3 wariant 18 – w wersji murowanej. MG3 wariant 18 to projekt niedużego parterowego domu jednorodzinnego z poddaszem użytkowym w modnej architekturze nowoczesnej stodoły, przeznaczonego dla 3-5 osobowej rodziny. Budynek ma prostokątną bryłę, przykrytą dwuspadowym dachem. Dach bazowo ma kąt nachylenia 37 stopni – można go dostosować do wymagań urbanistycznych w razie potrzeby. Ściany zewnętrzne budynku przewidziano z betonu komórkowego izolowanego styropianem. Strop nad parterem zaprojektowano jako płytę betonową monolityczna. Konstrukcja dachu została zaprojektowana w układzie krokwiowym. Wnętrze domu przewidziano z dużą ilością ozdobnych drewnianych elementów wykończeniowych, jak ozdobne drewniane suity, lub drewniana okładzina części ścian. Wnętrze można oczywiście wykończyć też bez drewnianych dodatków – tynkowanymi i malowanymi ścianami i sufitami. Główną atrakcją wnętrza domu jest oczywiście przeszklona ściana salonu, łącząca przestrzeń dzienną z tarasem i otaczającym ogrodem. Dzięki otwartemu wnętrzu parteru z dużymi przeszkleniami, ten nieduży 90-metrowy dom sprawia wrażenie znacznie większego. Poza częścią dzienną z salonem i kuchnią, pozostałe pomieszczenia we wnętrzu to – na parterze : dodatkowy pokój ( sypialnia lub gabinet ), łazienka i schowek gospodarczy, oraz na poddaszu : trzy sypialnie, łazienka i garderoba. Instalacje grzewcze : w budynku przewidziano zasilanie instalacji c.o. kotłem gazowym dwufunkcyjnym, umieszczonym w pomieszczeniu łazienki, lub zamiennie niedużą pompę ciepła powietrze-woda, również umieszczoną w łazience. Posiadamy też wariant ogrzewania elektrycznego, z grzejnikami elektrycznymi i klimatyzatorami z funkcją grzania. Dodatkowe źródło ciepła może stanowić kominek typu koza umieszczony w salonie. Wentylacja w budynku zaprojektowana jest jako mechaniczna z rekuperacją. Można też zastosować tradycyjną wentylację grawitacyjną. Wszystkie przegrody zewnętrzne : ściany, dach – zaprojektowano jako bardzo dobrze ocieplone. Budynek ma zwartą bryłę i niedużą kubaturę. Budynek jest energooszczędny – tani i prosty w eksploatacji. Elewacje zewnętrzne domu bazowo zaproponowano z tynku cienkowarstwowego na styropianie. Dom można również obłożyć elewacją drewnianą – dowolnie, wedle gustu przyszłych właścicieli. MG 3 wariant 18 to doskonała propozycja dla osób planujących budowę prostego, niedużego domu, funkcjonalnego w użytkowaniu i ekonomicznego w eksploatacji. Dom MG 3 należy do serii projektów z naszej firmy produkującej gotowe domy modułowe : DMH – Dream Mobil House / Dream Wood House. Wersję murowaną kierujemy do osób, które chcą samodzielnie wybudować swój przyszły dom, według tego projektu, w tradycyjnej technologii murowanej. Zapraszamy !
Technologia:murowa
Materiały:
| Fundamenty: | płyta betonowa fundamentowa |
| Ściany zewnętrzne: | ściany murowane – bloczki gazobeton + styropian |
| Strop: | płyta betonowa monolityczna |
| Elewacje: | deska elewacyjna lub tynk cienkowarstwowy |
| Pokrycie dachu: | blacha na rąbek lub dachówka |
Dach: dwuspadowy
| Nazwa etapu | Koszt |
|---|---|
| stan surowy otwarty | 189 281 zł |
| stan surowy zamknięty | 257 455 zł |
| pokrycie dachu | 18 920 zł |
| roboty wykończeniowe | 240 923 zł |
| pod klucz | 498 378 zł |
| Nazwa | Cena |
|---|---|
| wersja podstawowa | 5890 zł |
Masz problem ze znalezieniem swojego idealnego projektu? Po prostu skontaktuj się z nami. Niewielką część sprzedawanych projektów jeszcze nie udało nam się wprowadzić do wyszukiwarki internetowej. Dołożymy wszelkich starań, aby pomóc znaleźć Tobie to, czego szukasz! UWAGA! Zapoznaj się z ofertą dalej współpracy i uzyskaj rabat na wszystkie produkty – nawet do 10%!Jak otrzymać dodatkowe rabaty?