Pomożemy Tobie:
- Wybrać projekt zgodny z Twoimi preferencjami
- Sprawdzić jego zgodność z WZ lub PZT
- Zakupić projekt w najlepszej cenie wraz z dostosowaniem
- Znaleźć wykonawcę nowych technologii (np. fotowoltaika)
Prezentowane informacje na karcie mają charakter poglądowy. Jeśli potrzebujesz więcej informacji/szczegółów odnośnie projektu - możemy je wysłać na Twój email. Prosimy o kontakt telefoniczny lub wypełnienie formularza.Pomożemy Tobie:
Gratis otrzymujesz:
Twoje korzyści:
Masz pytania?
(pn - pt: 08:00 - 18:00)
| Pozycja | Wartość |
|---|---|
| kąt nachylenia dachu | 37° |
| wysokość w kalenicy | 6.87 m |
| typ dachu | dwuspadowy |
| powierzchnia dachu | 8340 m2 |
| Nazwa | plik |
|---|---|
| Plik szczegółowy | pobierz PDF |
| Zestawienie materiałowe | pobierz PDF |
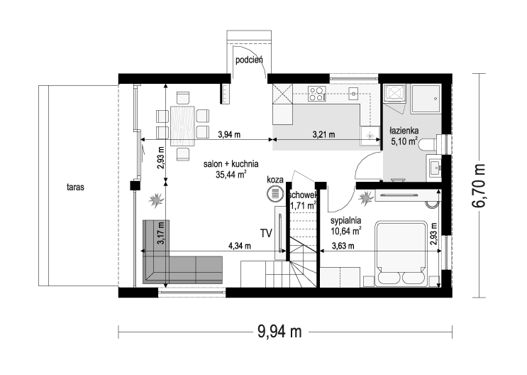
Projekt domu MG 3 wariant 18 – w wersji szkieletowej drewnianej. MG 3 v 18 to projekt niedużego parterowego domu jednorodzinnego z poddaszem użytkowym, w modnej architekturze nowoczesnej stodoły, przeznaczonego dla 3-5 osobowej rodziny. Budynek ma prostokątną bryłę, przykrytą dwuspadowym dachem. Dach bazowo ma kąt nachylenia 37 stopni – można go dostosować do wymagań urbanistycznych w razie potrzeby. Konstrukcja budynku została zaprojektowana jako szkieletowa drewniana. Ściany, strop nad parterem, oraz konstrukcja dachu zaprojektowana jest z drewna konstrukcyjnego C24, oraz KVH. Przegrody zewnętrzne izolowane są wełną mineralną o dobrej lambdzie. Dodatkowo można zwiększyć izolację ścian i dachu o warstwę wełny drzewnej – zapobiegającej przegrzewaniu wnętrza. Wnętrze domu przewidziano z dużą ilością ozdobnych drewnianych elementów wykończeniowych, jak ozdobne drewniane suity, lub drewniana okładzina części ścian. Wnętrze można oczywiście wykończyć też bez drewnianych dodatków – z okładziną z płyt g-k lub fermacell. Główną atrakcją wnętrza domu jest oczywiście przeszklona ściana salonu, łącząca przestrzeń dzienną z tarasem i otaczającym ogrodem. Dzięki otwartemu wnętrzu parteru z dużymi przeszkleniami, ten nieduży 90-metrowy dom sprawia wrażenie znacznie większego. Poza częścią dzienną z salonem i kuchnią, pozostałe pomieszczenia we wnętrzu to – na parterze : dodatkowy pokój ( sypialnia lub gabinet ), łazienka i schowek gospodarczy, oraz na poddaszu : trzy sypialnie, łazienka i garderoba. Instalacje grzewcze : w budynku przewidziano zasilanie instalacji c.o. kotłem gazowym dwufunkcyjnym, umieszczonym w pomieszczeniu łazienki, lub zamiennie niedużą pompę ciepła powietrze-woda, również umieszczoną w łazience. Posiadamy też wariant ogrzewania elektrycznego, z grzejnikami elektrycznymi i klimatyzatorami z funkcją grzania. Dodatkowe źródło ciepła może stanowić kominek typu koza umieszczony w salonie. Wentylacja w budynku zaprojektowana jest jako mechaniczna z rekuperacją. Można też zastosować tradycyjną wentylację grawitacyjną. Wszystkie przegrody zewnętrzne : ściany, dach – zaprojektowano jako bardzo dobrze ocieplone. Budynek ma zwartą bryłę i niedużą kubaturę. Budynek jest energooszczędny – tani i prosty w eksploatacji. Elewacje zewnętrzne domu bazowo zaproponowano z okładziny drewnianej. Dom można również wykończyć tynkiem cienkowarstwowym – dowolnie, wedle gustu przyszłych właścicieli. MG 3 wariant 18 drewniany, to doskonała propozycja dla osób planujących budowę prostego, niedużego domu, funkcjonalnego w użytkowaniu i ekonomicznego w eksploatacji. Dom MG 3 należy do serii projektów z naszej firmy produkującej gotowe domy modułowe : DMH – Dream Mobil House / Dream Wood House. Projekt typowy w wersji szkieletowej drewnianej, kierujemy do osób, które chcą samodzielnie wybudować swój przyszły dom z lokalnym wykonawcą, według tego projektu. Natomiast dla osób chcących zamówić kompleksowo gotowy dom w jednaj firmie, zapraszamy do współpracy z nami w ramach naszej firmy DMH. Zapraszamy !
Technologia:drewniana
Materiały:
| Fundamenty: | płyta betonowa fundamentowa |
| Ściany zewnętrzne: | szkieletowe drewniane + wełna mineralna |
| Strop: | drewniany belkowy |
| Elewacje: | deska elewacyjna |
| Pokrycie dachu: | blacha na rąbek lub dachówka |
Dach: dwuspadowy
| Nazwa etapu | Koszt |
|---|---|
| stan surowy otwarty | 153 140 zł |
| stan surowy zamknięty | 259 432 zł |
| pokrycie dachu | 18 920 zł |
| roboty wykończeniowe | 251 116 zł |
| pod klucz | 510 548 zł |
| Nazwa | Cena |
|---|---|
| wersja podstawowa | 5890 zł |
Masz problem ze znalezieniem swojego idealnego projektu? Po prostu skontaktuj się z nami. Niewielką część sprzedawanych projektów jeszcze nie udało nam się wprowadzić do wyszukiwarki internetowej. Dołożymy wszelkich starań, aby pomóc znaleźć Tobie to, czego szukasz! UWAGA! Zapoznaj się z ofertą dalej współpracy i uzyskaj rabat na wszystkie produkty – nawet do 10%!Jak otrzymać dodatkowe rabaty?