Projekt magazynu -Magazyn z częścią mieszkalną -GM07b

ID projektu:18992

0 zł0 zł
Powierzchnia użytkowa m2
Min. wymiary działki x
Typ i kąt dachu / wysokość dwuspadowy45.0° /9.57m
  • Powierzchnia użytkowa 0 m2
  • Powierzchnia zabudowy 214.35 m2
  • Powierzchnia netto 353.88 m2
  • Kubatura 1519 m3

  • Min. wymiary działki x m

  • Typ dachu dwuspadowy
  • Wysokość budynku 9.57 m
  • Kąt nachylenia dachu 45.0°

  • Poddasze brak
  • Podpiwniczony nie
  • Garaż brak
  • Pomieszczenia pokoi, łazienek
  • ID projektu 18992
  • Pracownia Kolekcja Muratora
projekt na zamówienie - cena na zapytanie
Zamów Zadaj pytanie
pokaż lustrzane odbicie
ID projektu:18992

Pomożemy Tobie:

  • Wybrać projekt zgodny z Twoimi preferencjami
  • Sprawdzić jego zgodność z WZ lub PZT
  • Zakupić projekt w najlepszej cenie wraz z dostosowaniem
  • Znaleźć wykonawcę nowych technologii (np. fotowoltaika)

Gratis otrzymujesz:

  • Nieodpłatne porady inwestorskie (czytaj więcej)
  • Poradnik inwestora w PDF - "Kupiłem gotowy projekt - co dalej?"
  • Tablicę informacyjną
  • Bezpłatną zgodę na zmiany

Twoje korzyści:

  • Gwarancja najniższej ceny
  • Bezpłatna dostawa lub odbiór osobisty
  • Możliwość zwrotu lub wymiany
  • Zakup z profesjonalną obsługą
  • Przeszukiwanie tysięcy projektów na jednej stronie

Masz pytania?

Prezentowane informacje na karcie mają charakter poglądowy.

Jeśli potrzebujesz więcej informacji/szczegółów odnośnie projektu - możemy je wysłać na Twój email. Prosimy o kontakt telefoniczny lub wypełnienie formularza.

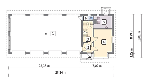
rzut parteru
pokaż lustrzane odbicie

rzut parteru 0 m2 /175.97 m2

Lp. Nazwa pow. użytkowa pow. podłogi
1 pom. magazynowe 0 m2 125.2 m2
2 przedsionek 0 m2 4.29 m2
3 hol 0 m2 10.57 m2
4 pom. pomocnicze 0 m2 23.2 m2
5 kotłownia 0 m2 10.55 m2
6 wc 0 m2 2.16 m2
rzut poddasza
pokaż lustrzane odbicie

rzut poddasza 91.91 m2 /177.91 m2

Lp. Nazwa pow. użytkowa pow. podłogi
7 schody 0 m2 13.04 m2
8 pom. pomocnicze 0 m2 14.75 m2
9 pom. pomocnicze 0 m2 17.62 m2
10 wc 0 m2 4.36 m2
11 korytarz 10.28 m2 10.28 m2
12 łazienka 6.11 m2 8.53 m2
13 sypialnia 12.36 m2 17.15 m2
14 pokój dzienny + jadalnia 42.49 m2 55.12 m2
15 aneks kuchenny 5.93 m2 8.52 m2
16 sypialnia 11.69 m2 16.76 m2
17 garderoba 3.05 m2 4.62 m2
18 balkon 0 m2 7.16 m2
przekrój
pokaż lustrzane odbicie

Technologia:murowa

Uproszczony ślepy kosztorys dostępny na zamówienie w terminie 10 dni roboczych. Oferta dotyczy klientów zamawiających projekt. <br>
Szerokość wjazdu: {szerokosc_wjazdu[1]}2.96
Wysokość wjazdu: {wysokosc_wjazdu[1]}3.0

Jednym z głównych atutów naszej firmy jest pełna legalność sprzedawanych produktów. Wszystkie prezentowane projekty pochodzą bezpośrednio spod ręki architektów/projektantów posiadających stosowne uprawnienia do wykonywania zawodu. Posiadaczem praw autorskich prezentowanego projektu jest:

arch. Ewa Dziewiątkowska

3 egzemplarze projektu architektoniczno-budowlanego ze szczegółowym opisem
3 egzemplarze projektu technicznego (konstrukcja, instalacje: wodno-kanalizacyjna, c.o., elektryczna, gazowa (jeśli występują)) ze szczegółowym opisem
charakterystyka energetyczna (jeśli dotyczy)
uproszczony ślepy kosztorys – orientacyjne zestawienie materiałów, robocizny i sprzętu z podziałem na etapy budowy
lista zmian, które można wprowadzić w ramach adaptacji projektu

Nazwa etapu Koszt
stan zerowy 42 000 zł
stan surowy otwarty 257 000 zł
stan surowy zamknięty 62 000 zł
stan surowy - suma 361 000 zł (42 000 +257 000 +62 000)
wykończenie zewnętrzne 0 zł
instalacje sanitarne 0 zł
instalacje sanitarne 0 zł
stan deweloperski 361 000 zł
Nazwa Cena
wersja podstawowa 0 zł
Opcje dodatkowe:

Udogodnienia

  • Parterowy
  • Parterowy bez poddasza użytkowego
  • Piętrowy
  • Poddasze

Masz problem ze znalezieniem swojego idealnego projektu?

Po prostu skontaktuj się z nami. Niewielką część sprzedawanych projektów jeszcze nie udało nam się wprowadzić do wyszukiwarki internetowej. Dołożymy wszelkich starań, aby pomóc znaleźć Tobie to, czego szukasz!

Jak otrzymać dodatkowe rabaty?

UWAGA! Zapoznaj się z ofertą dalej współpracy i uzyskaj rabat na wszystkie produkty – nawet do 10%!

Zadaj pytanie o ten projekt





Zamów ten projekt






Projekty ARCHON+