Projekt domu -Jubileuszowy -M100

ID projektu:19721

4775 zł4775 zł
Powierzchnia użytkowa 190.6 m2
Min. wymiary działki 28.60 x22.60
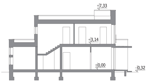
Typ i kąt dachu / wysokość plaski3.0° /7.65m
  • Powierzchnia użytkowa 190.6 m2
  • Powierzchnia zabudowy 232 m2
  • Powierzchnia netto 233.3 m2
  • Kubatura 1137 m3

  • Min. wymiary działki 28.60 x22.60 m

  • Typ dachu plaski
  • Wysokość budynku 7.65 m
  • Kąt nachylenia dachu 3.0°
  • Kąt nachylenia dodatkowego/bocznego dachu 1.5°

  • Typ budynku Dom piętrowy
  • Poddasze brak
  • Podpiwniczony
  • Garaż 2-stanowiskowy
  • Pomieszczenia 6 pokoi,3 łazienek
  • ID projektu 19721
  • Pracownia Kolekcja Muratora
4775 zł
Zamów Zadaj pytanie
pokaż lustrzane odbicie
ID projektu:19721

Pomożemy Tobie:

  • Wybrać projekt zgodny z Twoimi preferencjami
  • Sprawdzić jego zgodność z WZ lub PZT
  • Zakupić projekt w najlepszej cenie wraz z dostosowaniem
  • Znaleźć wykonawcę nowych technologii (np. fotowoltaika)

Gratis otrzymujesz:

  • Nieodpłatne porady inwestorskie (czytaj więcej)
  • Poradnik inwestora w PDF - "Kupiłem gotowy projekt - co dalej?"
  • Tablicę informacyjną
  • Bezpłatną zgodę na zmiany

Twoje korzyści:

  • Gwarancja najniższej ceny
  • Bezpłatna dostawa lub odbiór osobisty
  • Możliwość zwrotu lub wymiany
  • Zakup z profesjonalną obsługą
  • Przeszukiwanie tysięcy projektów na jednej stronie

Masz pytania?

Prezentowane informacje na karcie mają charakter poglądowy.

Jeśli potrzebujesz więcej informacji/szczegółów odnośnie projektu - możemy je wysłać na Twój email. Prosimy o kontakt telefoniczny lub wypełnienie formularza.

rzut parteru
pokaż lustrzane odbicie

rzut parteru 152 m2 /199.2 m2

Lp. Nazwa pow. użytkowa pow. podłogi
1 przedsionek 11.6 m2 11.6 m2
2 hol 9.7 m2 9.7 m2
3 spiżarnia 2 m2 2 m2
4 kuchnia 12.4 m2 12.4 m2
5 jadalnia 11.5 m2 11.5 m2
6 pokój dzienny 33.5 m2 33.5 m2
7 gabinet 12.7 m2 12.7 m2
8 garderoba 1.2 m2 2.7 m2
9 korytarz 4.3 m2 4.3 m2
10 kotłownia (z pralnią) 7 m2 7 m2
11 łazienka 3.3 m2 3.3 m2
12 garderoba 1.6 m2 1.6 m2
13 garaż 41.2 m2 41.2 m2
14 taras 0 m2 30.2 m2
15 taras 0 m2 15.5 m2
rzut piętra
pokaż lustrzane odbicie

rzut piętra 79.8 m2 /79.8 m2

Lp. Nazwa pow. użytkowa pow. podłogi
16 schody 5.4 m2 5.4 m2
17 korytarz 5.3 m2 5.3 m2
18 sypialnia 13.8 m2 13.8 m2
19 łazienka 3.3 m2 3.3 m2
20 garderoba 2.6 m2 2.6 m2
21 sypialnia 15.2 m2 15.2 m2
22 sypialnia 15.5 m2 15.5 m2
23 łazienka 5.3 m2 5.3 m2
24 sypialnia 13.4 m2 13.4 m2
rzut piętra
pokaż lustrzane odbicie

rzut piętra 79.1 m2 /79.1 m2

Lp. Nazwa pow. użytkowa pow. podłogi
16 schody 5.4 m2 5.4 m2
17 korytarz 8.2 m2 8.2 m2
18 łazienka 7.6 m2 7.6 m2
19 pralnia 3.2 m2 3.2 m2
20 łazienka 3.2 m2 3.2 m2
21 garderoba 2.6 m2 2.6 m2
22 sypialnia 15.3 m2 15.3 m2
23 sypialnia 14.8 m2 14.8 m2
24 garderoba 2.3 m2 2.3 m2
25 garderoba 2.1 m2 2.1 m2
26 sypialnia 14.4 m2 14.4 m2
przekrój
pokaż lustrzane odbicie

Technologia:murowa

Dokumentacja projektowa zawiera dodatkową propozycję jednej z możliwych aranżacji wnętrza na piętrze. W ramach indywidualnej adaptacji projektu, w zależności od potrzeb przyszłych właścicieli domu, można w łatwy sposób, zmieniając układ ścian działowych, zaaranżować na piętrze inny układ pomieszczeń. <br>W tym rozwiązaniu przewidziano sypialnię małżeńską z łazienką i garderobą, dwie przestronne sypialnie z garderobami oraz ogólnodostępną większą łazienkę i dodatkowo pralnię. Jest to idealny układ dla mniejszej, czteroosobowej rodziny.

Jednym z głównych atutów naszej firmy jest pełna legalność sprzedawanych produktów. Wszystkie prezentowane projekty pochodzą bezpośrednio spod ręki architektów/projektantów posiadających stosowne uprawnienia do wykonywania zawodu. Posiadaczem praw autorskich prezentowanego projektu jest:

arch. Małgorzata Cybulska-Marks

3 egzemplarze projektu architektoniczno-budowlanego ze szczegółowym opisem
3 egzemplarze projektu technicznego (konstrukcja, instalacje: wodno-kanalizacyjna, c.o., elektryczna, gazowa (jeśli występują)) ze szczegółowym opisem
charakterystyka energetyczna (jeśli dotyczy)
uproszczony ślepy kosztorys – orientacyjne zestawienie materiałów, robocizny i sprzętu z podziałem na etapy budowy
lista zmian, które można wprowadzić w ramach adaptacji projektu

Nazwa etapu Koszt
stan zerowy 99 000 zł
stan surowy otwarty 230 000 zł
stan surowy zamknięty 107 000 zł
stan surowy - suma 436 000 zł (99 000 +230 000 +107 000)
wykończenie zewnętrzne 0 zł
instalacje sanitarne 0 zł
instalacje sanitarne 0 zł
stan deweloperski 436 000 zł
Nazwa Cena
wersja podstawowa 4775 zł
Opcje dodatkowe:
Kosztorys inwestorski 350 zł

Udogodnienia

  • Piętrowy

Masz problem ze znalezieniem swojego idealnego projektu?

Po prostu skontaktuj się z nami. Niewielką część sprzedawanych projektów jeszcze nie udało nam się wprowadzić do wyszukiwarki internetowej. Dołożymy wszelkich starań, aby pomóc znaleźć Tobie to, czego szukasz!

Jak otrzymać dodatkowe rabaty?

UWAGA! Zapoznaj się z ofertą dalej współpracy i uzyskaj rabat na wszystkie produkty – nawet do 10%!

Zadaj pytanie o ten projekt





Zamów ten projekt






Projekty ARCHON+