Pomożemy Tobie:
- Wybrać projekt zgodny z Twoimi preferencjami
- Sprawdzić jego zgodność z WZ lub PZT
- Zakupić projekt w najlepszej cenie wraz z dostosowaniem
- Znaleźć wykonawcę nowych technologii (np. fotowoltaika)
Prezentowane informacje na karcie mają charakter poglądowy. Jeśli potrzebujesz więcej informacji/szczegółów odnośnie projektu - możemy je wysłać na Twój email. Prosimy o kontakt telefoniczny lub wypełnienie formularza.Pomożemy Tobie:
Gratis otrzymujesz:
Twoje korzyści:
Masz pytania?
(pn - pt: 08:00 - 18:00)
| Pozycja | Wartość |
|---|---|
| kąt nachylenia dachu | 42° |
| wysokość w kalenicy | 8.35 m |
| typ dachu | dwuspadowy |
| powierzchnia dachu | 17302 m2 |
| Nazwa | plik |
|---|---|
| Plik szczegółowy | pobierz PDF |
| Zestawienie materiałowe | pobierz PDF |
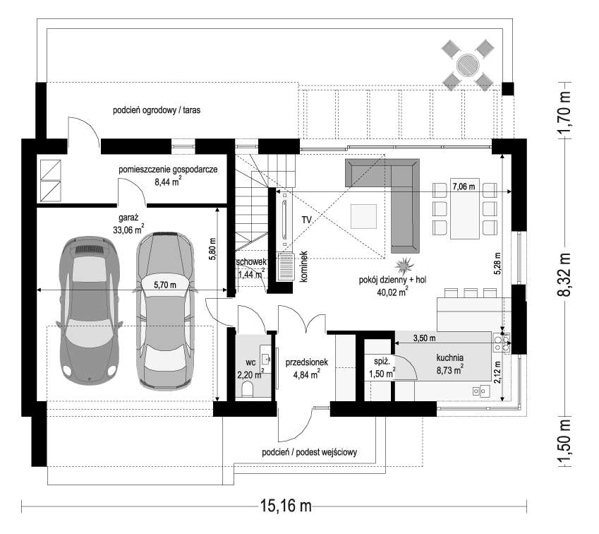
Projekt domu Dom na Zgrabnej, jest budynek parterowy z poddaszem użytkowym przeznaczonym dla 4- 5-osobowej rodziny. Zbudowany na prostokątnym rzucie, przykryty dwuspadowym bezokapowym dachem, z dodatkowymi zadaszeniami nad wejściem i nad tarasem ogrodowym. Dom zaprojektowano w nowoczesnej stylistyce, z wykorzystaniem minimalistycznych detali. Dwuspadowy dach przykryto płaską dachówką ceramiczną nadając bryle domu wrażenia solidności. Od strony ogrodowej cała połać dachu może być przeznaczona na montaż paneli fotowoltaicznych. Fasady domu to skontrastowane ze sobą białe tynkowane ściany, ze wstawkami z deski elewacyjnej i z płyt betonowych (lub HPL). Duże przeszklenia otwierają wnętrze na otaczający ogród i nadają sylwetce domu nowoczesny styl i dynamiczny wygląd. W elewacji frontowej wyeksponowano szerokie reprezentacyjne wejście, z drzwiami z naświetlem bocznym. Po obu stronach elewacji umieszczono drzwi garażowe i narożne okno kuchni. Zadaszenie nad wejściem zostało podkreślone liniowym oświetleniem i ozdobnym stalowym słupem HEB. Elewację ogrodową zdobi zadaszenie przechodzące w przydomową pergolę nad tarasem. Duże przeszklenie z salonu otwiera pokój dzienny na taras. Wnętrze domu podzielone zostało na trzy strefy: przestrzeń dzienną i garażowo-gospodarczą na parterze, oraz sypialnie na poddaszu. Parter i poddasze zostały wizualnie i przestrzennie połączone pustką /antresolą nad salonem. Do domu wchodzimy przez obszerny przedsionek, wprost do części dziennej łączącej salon, hol i kuchnię. Centralnym elementem jest tutaj ściana telewizyjno-kominkowa przy klatce schodowej. Za schodami znajduje się dwustanowiskowy garaż i duże pomieszczenie gospodarcze/kotłownia. Na poddaszu zaprojektowano trzy pokoje sypialne: duże pokoje dziecięce z własną łazienką, oraz apartament master z oddzielną łazienką i garderobą. Całość poddasza łączy hol -antresola z otwarciem na pustkę nad salonem. Budynek ma prostą konstrukcję i architekturę – powinien być łatwy i niedrogi w budowie. Prosta bryła bez udziwnień, oraz dobre izolacje przegród zewnętrznych, w połączeniu z wydajnymi instalacjami grzewczymi dają w rezultacie budynek energooszczędny. Ogrzewanie budynku bazowo zasilane jest kotłem gazowym kondensacyjnym, lub pompą ciepła. Można tutaj też zastosować kocioł na paliwo stałe. „Dom na Zgrabnej” to propozycja dla osób szukających wygodnego komfortowego domu z poddaszem użytkowym, o prostej nowoczesnej architekturze. Domu, który będzie łatwy w eksploatacji, nie będzie sprawiał kłopotów, a jego ponadczasowa architektura ładnie się zestarzeje. Zapraszamy!
Technologia:murowa
Materiały:
| Fundamenty: | betonowe ławy i ściany fundamentowe z bloczków betonowych |
| Ściany zewnętrzne: | ściany murowane – bloczki gazobeton + styropian |
| Strop: | monolityczny betonowy |
| Elewacje: | tynk cienkowarstwowy |
| Pokrycie dachu: | dachówka |
Dach: dwuspadowy
| Nazwa etapu | Koszt |
|---|---|
| stan surowy otwarty | 202 827 zł |
| stan surowy zamknięty | 315 130 zł |
| pokrycie dachu | 23 900 zł |
| roboty wykończeniowe | 376 430 zł |
| pod klucz | 691 560 zł |
| Nazwa | Cena |
|---|---|
| wersja podstawowa | 6690 zł |
Masz problem ze znalezieniem swojego idealnego projektu? Po prostu skontaktuj się z nami. Niewielką część sprzedawanych projektów jeszcze nie udało nam się wprowadzić do wyszukiwarki internetowej. Dołożymy wszelkich starań, aby pomóc znaleźć Tobie to, czego szukasz! UWAGA! Zapoznaj się z ofertą dalej współpracy i uzyskaj rabat na wszystkie produkty – nawet do 10%!Jak otrzymać dodatkowe rabaty?