Projekt domu -Dom na Parkowej 2

ID projektu:23461

7120 zł7120 zł
Powierzchnia użytkowa 10988 m2
Min. wymiary działki 2230.00 x2485.00
Typ i kąt dachu / wysokość wielospadowy30° /6.60m
  • Powierzchnia użytkowa 10988 m2
  • Powierzchnia zabudowy 17045 m2
  • Powierzchnia netto 11427 m2
  • Powierzchnia całkowita 17045 m2
  • Kubatura 637 m3

  • Min. wymiary działki 2230.00 x2485.00 m

  • Typ dachu wielospadowy
  • Wysokość budynku 6.60 m
  • Kąt nachylenia dachu 30°
  • Powierzchnia dachu 25800 m2

  • Typ budynku Dom parterowy
  • Poddasze możliwość adaptacji
  • Podpiwniczony nie
  • Garaż 1-stanowiskowy
  • Pomieszczenia 4 pokoi,2 łazienek
  • ID projektu 23461
  • Pracownia MGprojekt
7120 zł
Zamów Zadaj pytanie
pokaż lustrzane odbicie
ID projektu:23461

Pomożemy Tobie:

  • Wybrać projekt zgodny z Twoimi preferencjami
  • Sprawdzić jego zgodność z WZ lub PZT
  • Zakupić projekt w najlepszej cenie wraz z dostosowaniem
  • Znaleźć wykonawcę nowych technologii (np. fotowoltaika)

Gratis otrzymujesz:

  • Nieodpłatne porady inwestorskie (czytaj więcej)
  • Poradnik inwestora w PDF - "Kupiłem gotowy projekt - co dalej?"
  • Tablicę informacyjną
  • Bezpłatną zgodę na zmiany

Twoje korzyści:

  • Gwarancja najniższej ceny
  • Bezpłatna dostawa lub odbiór osobisty
  • Możliwość zwrotu lub wymiany
  • Zakup z profesjonalną obsługą
  • Przeszukiwanie tysięcy projektów na jednej stronie

Masz pytania?

Prezentowane informacje na karcie mają charakter poglądowy.

Jeśli potrzebujesz więcej informacji/szczegółów odnośnie projektu - możemy je wysłać na Twój email. Prosimy o kontakt telefoniczny lub wypełnienie formularza.

Rzut 1.
pokaż lustrzane odbicie

Rzut 1.

Rzut 2.
pokaż lustrzane odbicie

Rzut 2.

Sytuacja
pokaż lustrzane odbicie

Sytuacja

Pozycja Wartość
kąt nachylenia dachu 30°
wysokość w kalenicy 6.60 m
typ dachu wielospadowy
powierzchnia dachu 25800 m2

Przekroje i szczegóły

Nazwa plik
Plik szczegółowy pobierz PDF
Zestawienie materiałowe pobierz PDF

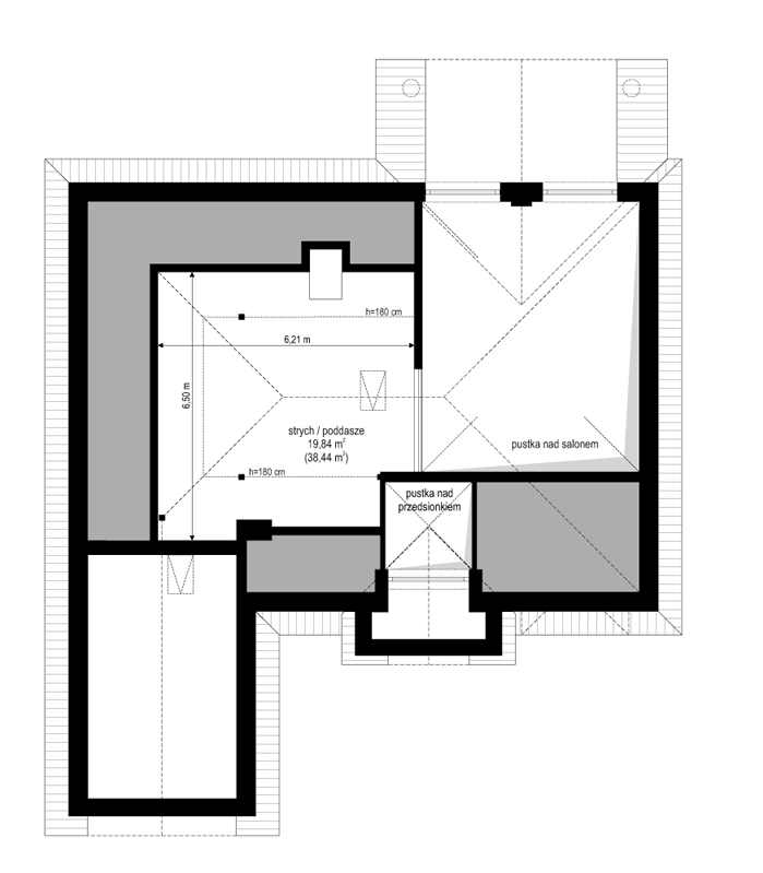
Projekt domu Dom na Parkowej 2 jest zdecydowanie najtańszą, najbardziej ekonomiczną wersją projektu z serii Domów na Parkowej. Projekt domu Dom na Parkowej 2 jest węższy i mniejszy od wersji bazowej, ma pojedynczy garaż, nie ma zagospodarowanego poddasza (tylko strych z wyciąganymi schodkami drabinkowymi), a strop nad parterem zaprojektowany jest w konstrukcji belkowej drewnianej zamiast płyty monolitycznej – żeby obniżyć nieco koszt realizacji. Przy czym strop zaprojektowano z okładziną z płyt OSB nad okładzinami z płyt g-k po to, żeby uniknąć potencjalnych rys na sufitach. Architektura domu stanowi nawiązanie do amerykańskich podmiejskich willi, oraz po części do polskiego dworku. Wygląd zewnętrzny domu jest klasyczny – jego wnętrze natomiast ma współczesny, funkcjonalny program i układ. Wnętrze podzielono na część dzienną, z ładnym salonem z jadalnią, połączonym z holem i kuchnią, oraz część nocną z trzema sypialniami i łazienką. Sypialnie dziecięce posiadają szafy wbudowane, wnękowe, sypialnia rodziców – garderobę. W wygodnego przedsionka z szafami przedostajemy się też do części gospodarczo –garażowej domu – do kotłowni i garażu. Na strychu pozostawiono wolną przestrzeń magazynową domu, albo po prostu pustkę. Ten w sumie nieduży dom dzięki zwartej prostokątnej bryle i sensownemu wnętrzu, jest bardzo funkcjonalny, a dzięki wbudowanym szafom, spiżarce, garderobie, strychowi, będzie bardzo „pakowny”. Architektura domu jest spokojna, stonowana, operuje nawiązującym do tradycji detalem, ale z zachowaniem dystansu i smaku. Front domu ozdabia reprezentacyjne wejście z szerokimi drzwiami z naświetlami, a od strony elewacji tylnej mamy z kolei duży zadaszony taras z szerokim przeszkleniem otwierającym salon na ogród. Projekt domu Dom na Parkowej 2 stanowi świetną propozycję dla osób, które z przyczyn finansowych, lub po prostu praktycznych, wcale nie chcą mieć bardzo dużego domu, ale jednocześnie w ramach ograniczonej powierzchni chcą uzyskać maksimum komfortu, wygody i poczucia luksusu. Mały dom nie musi oznaczać rezygnacji ze spełnienia marzeń. Jednocześnie materiały, izolacje i instalacje zastosowane w projekcie sprawią, że budynek będzie prosty i niedrogi w budowie, oraz tani w późniejszym utrzymaniu. Zapraszamy do zapoznania się z pełną ofertą pracowni MG Projekt: projekt domu Dom na Parkowej, projekt domu Dom na Parkowej 3, projekt domu Dom na Parkowej 4, projekt domu Dom na Parkowej 5, projekt domu Dom na Parkowej 6, projekt domu Dom na Parkowej 7 A, projekt domu Dom na Parkowej 7 B.

Technologia:murowa

Materiały:

  • Fundamenty
    betonowe ławy i ściany fundamentowe z bloczków betonowych
  • Ściany zewnętrzne
    ściany murowane – pustaki porotherm 25 + styropian + tynk cienkowarstwowy
  • Strop
    drewniany belkowy
  • Elewacje
    tynk cienkowarstwowy na styropianie
  • Pokrycie dachu
    dachówka

Dach: wielospadowy

Jednym z głównych atutów naszej firmy jest pełna legalność sprzedawanych produktów. Wszystkie prezentowane projekty pochodzą bezpośrednio spod ręki architektów/projektantów posiadających stosowne uprawnienia do wykonywania zawodu. Posiadaczem praw autorskich prezentowanego projektu jest:
Nazwa etapu Koszt
stan surowy otwarty 172 660 zł
stan surowy zamknięty 245 150 zł
pokrycie dachu 43 795 zł
roboty wykończeniowe 288 097 zł
pod klucz 533 247 zł
Nazwa Cena
wersja podstawowa 7120 zł

Udogodnienia

  • Parterowy
  • Parterowy bez poddasza użytkowego
  • Podpiwniczony
  • Z możliwością adaptacji poddasza

Masz problem ze znalezieniem swojego idealnego projektu?

Po prostu skontaktuj się z nami. Niewielką część sprzedawanych projektów jeszcze nie udało nam się wprowadzić do wyszukiwarki internetowej. Dołożymy wszelkich starań, aby pomóc znaleźć Tobie to, czego szukasz!

Jak otrzymać dodatkowe rabaty?

UWAGA! Zapoznaj się z ofertą dalej współpracy i uzyskaj rabat na wszystkie produkty – nawet do 10%!

Zadaj pytanie o ten projekt





Zamów ten projekt






Projekty ARCHON+