-Budynek gospodarczy G32b -G32b

ID projektu:23019

0 zł0 zł
Powierzchnia użytkowa m2
Min. wymiary działki x
Typ i kąt dachu / wysokość jednospadowy10.0° /4.32m
  • Powierzchnia użytkowa 0 m2
  • Powierzchnia zabudowy 84.8 m2
  • Powierzchnia netto 67.6 m2
  • Kubatura 323 m3

  • Min. wymiary działki x m

  • Typ dachu jednospadowy
  • Wysokość budynku 4.32 m
  • Kąt nachylenia dachu 10.0°

  • Poddasze brak
  • Podpiwniczony nie
  • Garaż brak
  • Pomieszczenia pokoi, łazienek
  • ID projektu 23019
  • Pracownia Kolekcja Muratora
projekt na zamówienie - cena na zapytanie
Zamów Zadaj pytanie
pokaż lustrzane odbicie
ID projektu:23019

Pomożemy Tobie:

  • Wybrać projekt zgodny z Twoimi preferencjami
  • Sprawdzić jego zgodność z WZ lub PZT
  • Zakupić projekt w najlepszej cenie wraz z dostosowaniem
  • Znaleźć wykonawcę nowych technologii (np. fotowoltaika)

Gratis otrzymujesz:

  • Nieodpłatne porady inwestorskie (czytaj więcej)
  • Poradnik inwestora w PDF - "Kupiłem gotowy projekt - co dalej?"
  • Tablicę informacyjną
  • Bezpłatną zgodę na zmiany

Twoje korzyści:

  • Gwarancja najniższej ceny
  • Bezpłatna dostawa lub odbiór osobisty
  • Możliwość zwrotu lub wymiany
  • Zakup z profesjonalną obsługą
  • Przeszukiwanie tysięcy projektów na jednej stronie

Masz pytania?

Prezentowane informacje na karcie mają charakter poglądowy.

Jeśli potrzebujesz więcej informacji/szczegółów odnośnie projektu - możemy je wysłać na Twój email. Prosimy o kontakt telefoniczny lub wypełnienie formularza.

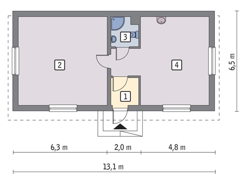
rzut parteru
pokaż lustrzane odbicie

rzut parteru 0 m2 /67.6 m2

Lp. Nazwa pow. użytkowa pow. podłogi
1 przedsionek 0 m2 3.1 m2
2 pom. gosp. 0 m2 32.8 m2
3 łazienka 0 m2 3.1 m2
4 pom. gosp. 0 m2 28.6 m2

Technologia:murowa

Wysokość garażu: {wysokosc_garazu[1]}4.32

Liczba pomieszczeń gospodarczych: 2

Jednym z głównych atutów naszej firmy jest pełna legalność sprzedawanych produktów. Wszystkie prezentowane projekty pochodzą bezpośrednio spod ręki architektów/projektantów posiadających stosowne uprawnienia do wykonywania zawodu. Posiadaczem praw autorskich prezentowanego projektu jest:

arch. Ewa Dziewiątkowska

3 egzemplarze projektu architektoniczno-budowlanego ze szczegółowym opisem
3 egzemplarze projektu technicznego (konstrukcja, instalacje: wodno-kanalizacyjna, c.o., elektryczna, gazowa (jeśli występują)) ze szczegółowym opisem
charakterystyka energetyczna (jeśli dotyczy)
uproszczony ślepy kosztorys – orientacyjne zestawienie materiałów, robocizny i sprzętu z podziałem na etapy budowy
lista zmian, które można wprowadzić w ramach adaptacji projektu

Nazwa etapu Koszt
stan zerowy 16 000 zł
stan surowy otwarty 40 000 zł
stan surowy zamknięty 14 000 zł
stan surowy - suma 70 000 zł (16 000 +40 000 +14 000)
wykończenie zewnętrzne 0 zł
instalacje sanitarne 0 zł
instalacje sanitarne 0 zł
stan deweloperski 70 000 zł
Nazwa Cena
wersja podstawowa 0 zł
Opcje dodatkowe:

Udogodnienia

  • Parterowy
  • Parterowy bez poddasza użytkowego
  • Piętrowy
  • Poddasze

Masz problem ze znalezieniem swojego idealnego projektu?

Po prostu skontaktuj się z nami. Niewielką część sprzedawanych projektów jeszcze nie udało nam się wprowadzić do wyszukiwarki internetowej. Dołożymy wszelkich starań, aby pomóc znaleźć Tobie to, czego szukasz!

Jak otrzymać dodatkowe rabaty?

UWAGA! Zapoznaj się z ofertą dalej współpracy i uzyskaj rabat na wszystkie produkty – nawet do 10%!

Zadaj pytanie o ten projekt





Zamów ten projekt






Projekty ARCHON+